高規格 KTV 設備,支援中、英、日、韓最新歌熱門曲目
明亮衛浴空間,配備嵌入式大理石浴缸
廚房設備齊全,搭配義大利 SERAX 與知名設計師聯名餐瓷
全室設有隔音設計,提供安靜且私密的住宿體驗
可提供專屬電子邀請卡,打造客製化入住儀式感
設備及用品


集娛樂與旅宿的會所
Melt 2


約 40 坪
3 房 2 衛
12 位貴賓
8 人
空間
格局
容納
入住
投影幕唱歌設備
雙螢幕影音
環繞式音響
65 吋智慧電視
無線網路
全戶空氣濾淨系統
全戶濕度控制系統
巧克力浴缸
衣櫥/衣架
步入式更衣室
浴巾
沐浴乳/洗髮精
吹風機
滾筒洗衣機/烘乾機
開放式廚房
冰箱
電磁爐/微波爐
基本廚具/碗盤
熱水壺
嵌入式電烤箱
嵌入式烘碗機
方案亮點
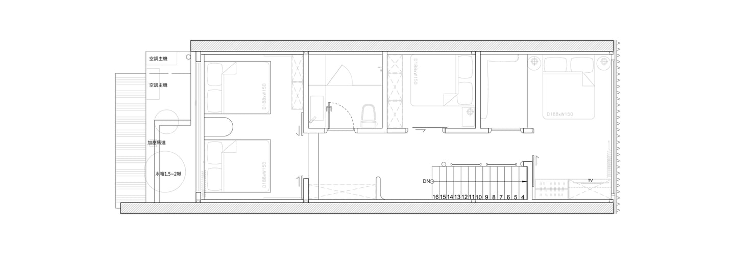
空間平面圖


















First floor
Second floor










方案亮點
高規格 KTV 設備,支援中、英、日、韓最新歌熱門曲目
明亮衛浴空間,配備嵌入式巧克力浴缸
廚房設備齊全,搭配義大利 SERAX 與知名設計師聯名餐瓷
全室設有隔音設計,提供安靜且私密的住宿體驗
可提供專屬電子邀請卡,打造客製化入住儀式感
設備及用品
投影幕唱歌設備
雙螢幕影音
環繞式音響
65 吋智慧電視
無線網路
全戶空氣濾淨系統
全戶濕度控制系統
開放式廚房
冰箱
電磁爐/微波爐
基本廚具/碗盤
熱水壺
嵌入式電烤箱
嵌入式烘碗機
巧克力浴缸
衣櫥/衣架
步入式更衣室
浴巾
沐浴乳/洗髮精
吹風機
滾筒洗衣機/烘乾機


集娛樂與旅宿的會所
Melt 2
40
室內約 坪 | 房 衛 | 容納 位貴賓 | 入住 人
12
3
2
8


Second floor
First floor

訂房須知
此空間方案最多可容納 12 人入場,隔夜入住上限為 8 人,不提供加床服務。若有額外人數,請於下訂前聯繫官方 LINE 確認。
六歲以上兒童視為一位賓客;六歲以下不佔床者可免費入住。
訂房需預付押金 NT$10,000,退房後若空間無損壞,將於 3–5 個工作天內退還至原匯款帳戶。
續住第二晚起享有房費八折優惠,差額將於退房時與押金一併退還。
訂房後如需變更日期,請於 14 日前通知。取消訂房將依照平台標準辦理。
特定節日與紅字假日價格將依照公告調整,請事先確認價格與可訂日期。
所有商業拍攝、廣告使用或其他公開曝光行為,須事前告知並經 Melt 團隊同意後方可進行。
若有佈置、私廚、水煙等客製化需求,歡迎加入官方 LINE 諮詢專人服務。
入住時間 17:00 後
退房時間 11:00 前



Fowllow Us
客服時間
週一至週日,9:00 AM to 1:00 AM.
商業合作請洽
meltmelt2023@gmail.com
Online Services
© Copyright Melt Taipei. All Rights Reserved.
